当前位置: 首页 > 水电博览 > 水电博览详细页
神流川抽水蓄能电站

  


    位于日本关东地区长野县东部信浓川水系支流南相木河和群马县西南部利根川水系交汇后的神流川上,装机容量2820MW,是世界上装机容量最大的抽水蓄能电站。
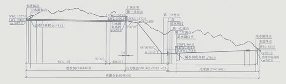
  枢纽工程由上水库、下水库、泄水建筑物、水道系统、厂房等组成,见图。
  上水库 大坝为心墙堆石坝,坝高136m,坝顶长444m,上游面坝坡坡度为1:2.7,下游面坝坡坡度为1:2,坝体体积730万m3,最高库水位1527.00m,相应库容1900万m3。筑坝材料利用开挖弃料,心墙土料含水量采用石料场原拟弃掉的CL级风化料进行调节。
  下水库 大坝为碾压混凝土重力坝,坝高120m,坝顶长350m,上游面776.5m高程以下坝坡坡度为为1:0.1,下游面坝坡坡度为1:0.84,坝体体积72万m3。库容1800万m3,最高库水位843.00m。每立方米混凝土掺用100kg水泥和粉煤灰。
  泄水建筑物 上水库泄水建筑物位于左坝肩,采用侧槽式溢洪道,设计流量280m3/s,陡槽后接消力池消能。考虑生态需要,下水库采用4套泄水设施,表孔溢洪道设计流量840m3/s,一个底孔设计泄量52m3/s,在坝上设一个流量为2.5m3/s可伸缩的分层取水口,下游采用消力池。
  水道系统 上、下水库均为侧式进/出水口。输水道总长约6350m。输水道分成两期,分别对应两个地下厂房。
  一期输水道连接4台机组。上游引水隧洞长2445m,内径8.2m,最大流速6.3m3/s。引水调压室为阻抗式,内径 17m,高104m,阻抗孔直径4.6m。经上游调压室后分为两条压力管道。压力管道主管长1366~1388m,内径4.6m,其中斜井段长约 960m,倾角48°,采用钢衬,最大流速10.2m/s。在下平段分成4条直径3~2.3m的支管,各长约100m。高压钢管和岔管采用HT-100级 高强度钢材。尾水管依次由4条合为2条,再经尾水调压室后合为1条,内径为4.1~8.2m。尾水调压室为带上室式的阻抗式,直径10m,高126m,阻 抗孔直径4.9m,上室长40m、宽13m、高15m。尾水隧洞直径8.2m,总长约2078m,全部用钢筋混凝土衬砌。
  二期输水道连接二期厂房内的2台机组,在上游调压井和尾水调压井处不分岔,其余与一期输水道完全相同。上游引水隧洞长2475m,引、尾水隧洞主洞内 径均为6.1m,最大流速5.8m/s。引水调压室为阻抗式,内径12m,高103m,阻抗孔直径3.3m。高压钢管厂1562m。尾水调压室型式同一 期,直径7m,高138m,阻抗孔直径3.4m,上室长22m、宽10m、高14m。
  厂房 地下厂房埋深500m,分为2座。一期厂房尺寸为215.9m×33m×53.6m(长×宽×高),安装4台机组。2台分裂变压器分别布置在厂 房两端,副厂房位于主厂房右端,安装场布置在厂房中部。发电机安装高程726.8m,机组安装高程710.00m。二期厂房尺寸为 139m×34m×55.3m(长×宽×高),安装2台机组。一台分裂式变压器布置在厂房左端,右端为安装场。两座厂房共用一条交通洞,为减少地面开挖, 全部采用隧洞交通,总长超过5km。
  6台单级可逆式水泵水轮机的单机容量为470MW,吸出高度-104m,最大和最小发电水头分别为675m和617m,额定水头653m,6台机引水流量510m3/s, 最大和最小抽水扬程分别为728m和677m。额定转速500r/min,最大飞逸转速755r/min。转轮直径4.385m,采用5个长叶片和5个短 叶片。发电机出力525MV·A,抽水功率469MV·A,额定电压18kV,发电和抽水工况功率因数分别为0.9和0.95。主变压器容量 1000MV·A。
  1997年5月开工,2005年12月首台机组发电,2010年第二台机组投入运行,预计2016年实现6台机组全部投入运行。

信息来源:新闻中心 发布日期:2014年03月17日